4613 1/2 Penkwe WayEagan, MN 55122
Due to the health concerns created by Coronavirus we are offering personal 1-1 online video walkthough tours where possible.




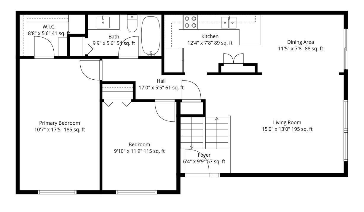
Step into this quiet end-unit townhome in one of Eagan’s most sought-after neighborhoods — fully move-in ready and loaded with meaningful updates that drive long-term value. This well-kept home features 3 bedrooms, 2 bathrooms, and an attached oversized 2-car garage, delivering the practical functionality today’s buyers expect. The main level boasts a large living room that flows seamlessly to a spacious deck overlooking serene green space—perfect for morning coffee or unwinding after a long day. The lower level offers a generous family room with brand-new carpet, in-unit laundry tucked neatly in the mechanical room, and easy access to the garage. The main level shines with a newly remodeled bathroom and a spacious primary bedroom complete with a large walk-in closet. Major capital improvements have already been handled for the next owner, including a brand-new furnace installed in November 2025 and a new roof just one year old—true peace of mind. Set in a quiet community just minutes from the Minnesota Zoo and I-35, this location offers both convenience and livability. Served by an award-winning school district, this is a high-demand Eagan opportunity that doesn’t come around often. Move in and start enjoying the lifestyle this property delivers from day one.
| 3 weeks ago | Listing updated with changes from the MLS® | |
| 3 weeks ago | Status changed to Active | |
| 3 weeks ago | Price changed to $274,900 | |
| 2 months ago | Listing first seen on site |
Listing information is provided by Participants of the Northstar MLS. IDX information is provided exclusively for personal, non-commercial use, and may not be used for any purpose other than to identify prospective properties consumers may be interested in purchasing. Information is deemed reliable but not guaranteed. Copyright 2026, Northstar MLS.
Last checked: 2026-02-15 10:07 AM UTC


Did you know? You can invite friends and family to your search. They can join your search, rate and discuss listings with you.