3000 Saint Albans Mill Road 111Minnetonka, MN 55305
Due to the health concerns created by Coronavirus we are offering personal 1-1 online video walkthough tours where possible.




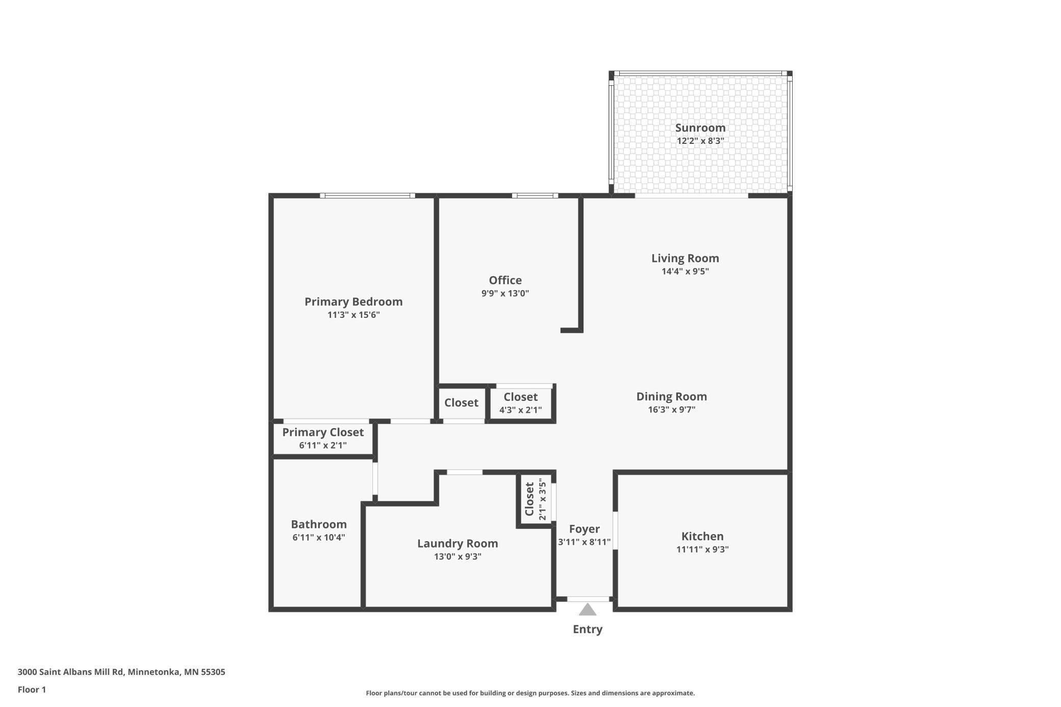
Welcome to this beautifully maintained 2-bedroom, 1-bathroom condo with sun-drenched windows in the highly desirable Saint Albans Mill community in Minnetonka, offering true one-level living with a functional and efficient layout. This main-floor unit features a spacious in-unit laundry room with utility sink, built-in storage cabinets and desk area, good lighting, and the flexibility to use it as an additional vanity.. The updated kitchen showcases new stainless steel appliances, while freshly cleaned carpets and wood shutters throughout create a warm, move-in ready feel. Enjoy a rare screened-in southwest-facing porch with direct access to lush green space and nearby walking paths—perfect for seamless indoor-outdoor living and easy access from the parking lot. The oversized bathroom includes a full tub with oversized tub surround and grab bars, and the second bedroom offers versatility as a den or guest room. Residents benefit from unmatched amenities within the building, including an indoor pool, hot tub, sauna, fitness center, game room, workshop, and more, along with a stunning outdoor pool, tennis courts, and abundant guest parking. Located just steps from the scenic trails of Big Willow Park and waters of the Minnehaha Creek, the grounds of this three building development feel like an established nature preserve with convenient access to major roads. This unit combines privacy, accessibility, and lifestyle in one of Minnetonka’s most sought-after communities.
| 17 hours ago | Listing updated with changes from the MLS® | |
| 17 hours ago | Listing first seen on site |
Listing information is provided by Participants of the Northstar MLS. IDX information is provided exclusively for personal, non-commercial use, and may not be used for any purpose other than to identify prospective properties consumers may be interested in purchasing. Information is deemed reliable but not guaranteed. Copyright 2026, Northstar MLS.
Last checked: 2026-03-29 12:49 PM UTC


Did you know? You can invite friends and family to your search. They can join your search, rate and discuss listings with you.